Автомойка в ЗАО

ул Маршала Тимошенко, д. 17, корп. 2

57 000 000 руб.

?

$ 1 086

€ 979

201 058 руб./м²


283.5 м²

1/1 этажей

Код объекта

132275

Предложение доступно для субагентов, авторизуйтесь

Автомойка в ЗАО

Код объекта: 132275.
Тип объекта: Помещение свободного назначения.
Площадь: 283.5 м².
Этаж / Этажность: 1 / 1.
Назначения: Автомойка.

Описание и характеристики

Характеристики:
- 1 линия
- Отдельная входная группа
- Общая парковка
- Есть возможность разместить вывеску
- Погрузка/разгрузка: Главный вход
- Доступ 24/7
- ХВС/ГВС
- Свой санузел
- Автономное отопление
- Приточно-вытяжная вентиляция
- Есть кондиционер
- Максимальная мощность 98 кВт
- Чистовой ремонт
- Отдельно стоящее здание
- Имеется запасной выход
- Без лифта
- Высота потолков 3 м
- С окнами
- Возможность перепланировки
- Видеонаблюдение

Дополнительная информация:
Продаётся в собственность помещение с работающей автомойкой в ЗАО.
Помещение полностью оборудовано собственником и сдано в аренду.
Арендатор платит 350.000, при смене собственника съедет.
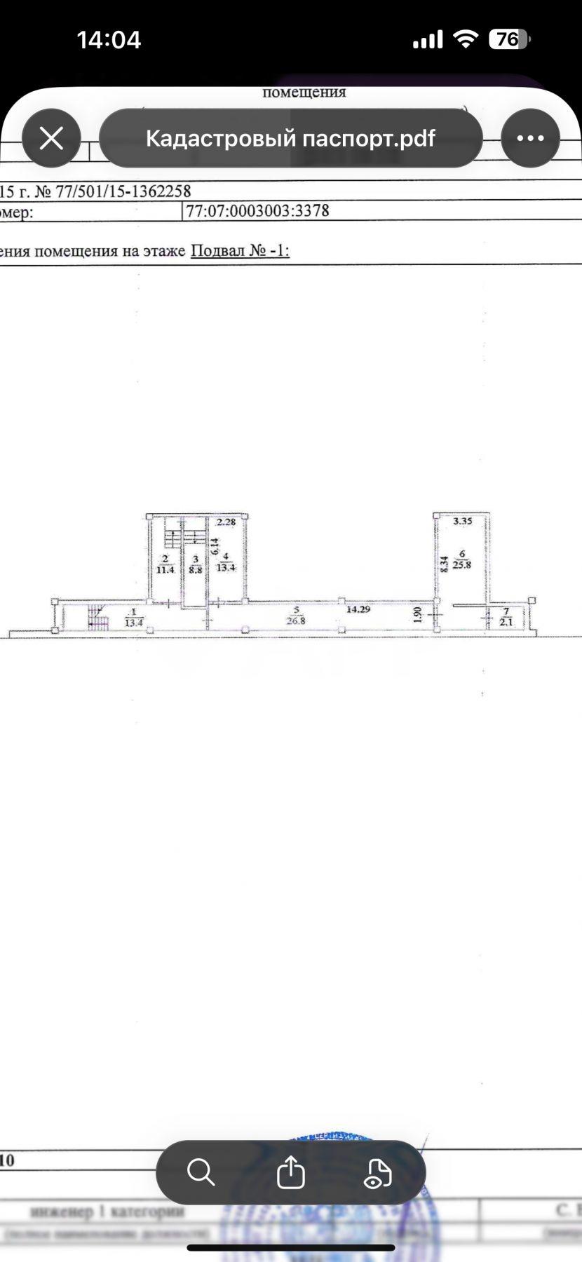
Общая площадь 283,5 кв. метра.
Состав помещений: 3 поста мойки. Зона ожидания, комната для персонала.
Цокольный этаж 20 этажного жилого дома в  комплексе премиум класса  "Ностальгия".
АРР0

По всем вопросам можете обращаться к представителю собственника: Дмитрий Ю (239)

Перейти в карточку объекта в CRM: 132275.

Наиля

+7 927 030-01-60

или оставьте ваш номер, и я перезвоню в течение 30 минут

Отправляя заявку вы соглашаетесь на обработку персональных данных

57 000 000 руб.

?

$ 761 677

€ 651 234

201 058 руб./м²


283.5 м²

1/1 этажей

Код объекта

132275

Предложение доступно для субагентов, авторизуйтесь

Наиля

+7 927 030-01-60

или оставьте ваш номер, и я перезвоню в течение 30 минут

Отправляя заявку вы соглашаетесь на обработку персональных данных

Похожие объявления

Посмотреть все похожие объявления
1/6
Код объекта: 374778.
Тип объекта: Помещение свободного назначения.
Площадь: 150.5 м².
Этаж / Этажность: 1 / 16.
1/28
Код объекта: 299159.
Тип объекта: Помещение свободного назначения.
Площадь: 123 м².
Этаж / Этажность: 2 / 9.
1/6
Код объекта: 414337.
Тип объекта: Помещение свободного назначения.
Площадь: 436 м².
Этаж / Этажность: 1 / 1.
1/18
Код объекта: 408547.
Тип объекта: Помещение свободного назначения.
Площадь: 144 м².
Этаж / Этажность: 1 / 19.
1/10
Код объекта: 401219.
Тип объекта: Помещение свободного назначения.
Площадь: 204 м².
Этаж / Этажность: 1 / 22.
1/10
Код объекта: 391608.
Тип объекта: Помещение свободного назначения.
Площадь: 225 м².
Этаж / Этажность: 1 / 2.
1/10
Код объекта: 401219.
Тип объекта: Помещение свободного назначения.
Площадь: 204 м².
Этаж / Этажность: 1 / 22.
1/10
Код объекта: 401366.
Тип объекта: Помещение свободного назначения.
Площадь: 332 м².
Этаж / Этажность: 1 / 22.
1/11
Код объекта: 411764.
Тип объекта: Помещение свободного назначения.
Площадь: 272 м².
Этаж / Этажность: 2 / 5.
1/12
Код объекта: 390318.
Тип объекта: Помещение свободного назначения.
Площадь: 247.7 м².
Этаж / Этажность: -1 / 6.
1/4
Код объекта: 248187.
Тип объекта: Торговое помещение.
Площадь: 122 м².
Этаж / Этажность: 1 / 21.
1/6
Код объекта: 248186.
Тип объекта: Торговое помещение.
Площадь: 88.15 м².
Этаж / Этажность: 1 / 21.
1/8
Код объекта: 257123.
Тип объекта: Офисное помещение.
Площадь: 562 м².
Этаж / Этажность: 1 / 7.
1/3
Код объекта: 342071.
Тип объекта: Торговое помещение.
Площадь: 58.3 м².
Этаж / Этажность: 1 / 7.
1/3
Код объекта: 342074.
Тип объекта: Торговое помещение.
Площадь: 84.2 м².
Этаж / Этажность: 1 / 7.

Не хочу искать, перезвоните мне!

Оставьте номер телефона, наш специалист свяжется с вами и поможет с подбором недвижимости!