Сдам под производство или офис 193 м.

ул Краснобогатырская, д. 89

346 435 руб.

?

$ 1 086

€ 979

1 795 руб./м²


193 м²

2/4 этажей

Код объекта

131385

Предложение доступно для субагентов, авторизуйтесь

Сдам под производство или офис 193 м.

Код объекта: 131385.
Тип объекта: Бизнес-центр/офисный центр.
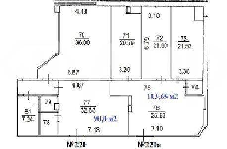
Площадь: 193 м².
Этаж / Этажность: 2 / 4.

Описание и характеристики

Сдам офисно-производственное помещение 193 кв.м. на 2 этаже. Лифт, все коммуникации. Рядом метро Преображенская площадь. Возможна разгрузка-погрузка небольшого фургона прямо из помещения, использование под склад, 250 кг.метр. Хороший ремонт.  Мощность 25 квт, можно увеличить, присутствует техобслуживание помещений. Цена с НДС.  Администрация нацелена на решение вопросов.

Характеристики:
- 1 линия
- Общая входная группа
- Общая парковка
- Доступ по общему графику
- ХВС/ГВС
- Общий санузел
- Центральное отопление
- Хороший ремонт
- Кабинетная планировка
- Бизнес центр
- Имеется лифт
- Видеонаблюдение
- Без мебели
- С окнами
- Инфраструктура: Кафе/столовые, Магазины, Банки
- Коммунальные услуги оплачиваются отдельно
- Предоставление юридического адреса
АРР6

По всем вопросам можете обращаться к представителю собственника: Андрей П.(229)

Перейти в карточку объекта в CRM: 131385.

Наиля

+7 927 030-01-60

или оставьте ваш номер, и я перезвоню в течение 30 минут

Отправляя заявку вы соглашаетесь на обработку персональных данных

346 435 руб.

?

$ 4 514

€ 3 837

1 795 руб./м²


193 м²

2/4 этажей

Код объекта

131385

Предложение доступно для субагентов, авторизуйтесь

Наиля

+7 927 030-01-60

или оставьте ваш номер, и я перезвоню в течение 30 минут

Отправляя заявку вы соглашаетесь на обработку персональных данных

Похожие объявления

Посмотреть все похожие объявления
1/9
Код объекта: 401638.
Тип объекта: Бизнес-центр/офисный центр.
Площадь: 50 м².
Этаж / Этажность: 4 / 12.
1/15
Код объекта: 257064.
Тип объекта: Бизнес-центр/офисный центр.
Площадь: 300 м².
Этаж / Этажность: 2 / 12.
1/10
Код объекта: 413764.
Тип объекта: Бизнес-центр/офисный центр.
Площадь: 107 м².
Этаж / Этажность: 3 / 3.
1/14
Код объекта: 415424.
Тип объекта: Бизнес-центр/офисный центр.
Площадь: 72 м².
Этаж / Этажность: 1 / 7.
1/23
Код объекта: 390418.
Тип объекта: Бизнес-центр/офисный центр.
Площадь: 205 м².
Этаж / Этажность: 1 / 3.
1/12
Код объекта: 294303.
Тип объекта: Бизнес-центр/офисный центр.
Площадь: 146 м².
Этаж / Этажность: 6 / 12.
1/25
Код объекта: 358724.
Тип объекта: Бизнес-центр/офисный центр.
Площадь: 195 м².
Этаж / Этажность: 3 / 3.
1/10
Код объекта: 390549.
Тип объекта: Бизнес-центр/офисный центр.
Площадь: 135.52 м².
Этаж / Этажность: 2 / 2.
1/23
Код объекта: 390418.
Тип объекта: Бизнес-центр/офисный центр.
Площадь: 205 м².
Этаж / Этажность: 1 / 3.
1/4
Код объекта: 248187.
Тип объекта: Торговое помещение.
Площадь: 122 м².
Этаж / Этажность: 1 / 21.
1/6
Код объекта: 248186.
Тип объекта: Торговое помещение.
Площадь: 88.15 м².
Этаж / Этажность: 1 / 21.
1/8
Код объекта: 257123.
Тип объекта: Офисное помещение.
Площадь: 562 м².
Этаж / Этажность: 1 / 7.
1/3
Код объекта: 342071.
Тип объекта: Торговое помещение.
Площадь: 58.3 м².
Этаж / Этажность: 1 / 7.
1/3
Код объекта: 342074.
Тип объекта: Торговое помещение.
Площадь: 84.2 м².
Этаж / Этажность: 1 / 7.

Не хочу искать, перезвоните мне!

Оставьте номер телефона, наш специалист свяжется с вами и поможет с подбором недвижимости!