Помещение в аренду под общепит

ул Сельскохозяйственная, д. 37

150 000 руб.

?

$ 1 086

€ 979

3 049 руб./м²


49.2 м²

1/18 этажей

Код объекта

130033

Предложение доступно для субагентов, авторизуйтесь

Помещение в аренду под общепит

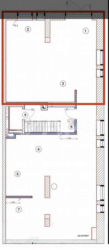
Код объекта: 130033.
Тип объекта: Помещение общественного питания.
Площадь: 49.2 м².
Этаж / Этажность: 1 / 18.

Описание и характеристики

Характеристики:
- 1 линия
- Отдельная входная группа
- Общая парковка
- Есть возможность разместить вывеску
- Погрузка/разгрузка: Главный вход
- Доступ 24/7
- ХВС/ГВС
- Свой санузел
- Центральное отопление
- Приточно-вытяжная вентиляция
- Есть кондиционер
- Максимальная мощность 40 кВт
- Хороший ремонт
- Стрит ритейл
- Без лифта
- Высота потолков 4 м
- С окнами
- Видеонаблюдение
- Коммунальные услуги оплачиваются отдельно

Дополнительная информация:
Предлагаем а аренду помещение с евроремонтом в топовой локации, с целевым трафиком.
АРР1

По всем вопросам можете обращаться к представителю собственника: Шола А (710)

Перейти в карточку объекта в CRM: 130033.

Наиля

+7 927 030-01-60

или оставьте ваш номер, и я перезвоню в течение 30 минут

Отправляя заявку вы соглашаетесь на обработку персональных данных

150 000 руб.

?

$ 1 937

€ 1 640

3 049 руб./м²


49.2 м²

1/18 этажей

Код объекта

130033

Предложение доступно для субагентов, авторизуйтесь

Наиля

+7 927 030-01-60

или оставьте ваш номер, и я перезвоню в течение 30 минут

Отправляя заявку вы соглашаетесь на обработку персональных данных

Похожие объявления

Посмотреть все похожие объявления
1/20
Код объекта: 307638.
Тип объекта: Помещение общественного питания.
Площадь: 16.5 м².
Этаж / Этажность: 3 / 19.
1/11
Код объекта: 405260.
Тип объекта: Помещение общественного питания.
Площадь: 32 м².
Этаж / Этажность: 1 / 7.
1/11
Код объекта: 306909.
Тип объекта: Помещение общественного питания.
Площадь: 55 м².
Этаж / Этажность: 1 / 24.
1/4
Код объекта: 248187.
Тип объекта: Торговое помещение.
Площадь: 122 м².
Этаж / Этажность: 1 / 21.
1/6
Код объекта: 248186.
Тип объекта: Торговое помещение.
Площадь: 88.15 м².
Этаж / Этажность: 1 / 21.
1/8
Код объекта: 257123.
Тип объекта: Офисное помещение.
Площадь: 562 м².
Этаж / Этажность: 1 / 7.
1/3
Код объекта: 342071.
Тип объекта: Торговое помещение.
Площадь: 58.3 м².
Этаж / Этажность: 1 / 7.
1/3
Код объекта: 342074.
Тип объекта: Торговое помещение.
Площадь: 84.2 м².
Этаж / Этажность: 1 / 7.

Не хочу искать, перезвоните мне!

Оставьте номер телефона, наш специалист свяжется с вами и поможет с подбором недвижимости!