Клиника/Бьюти/Представительство/Шоурум/Обучение/Офис

б-р Кавказский, д. 51, корп. 2

389 870 руб.

?

$ 1 086

€ 979

2 999 руб./м²


130 м²

1/25 этажей

Код объекта

126331

Предложение доступно для субагентов, авторизуйтесь

Клиника/Бьюти/Представительство/Шоурум/Обучение/Офис

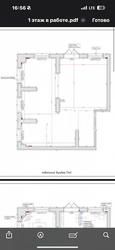
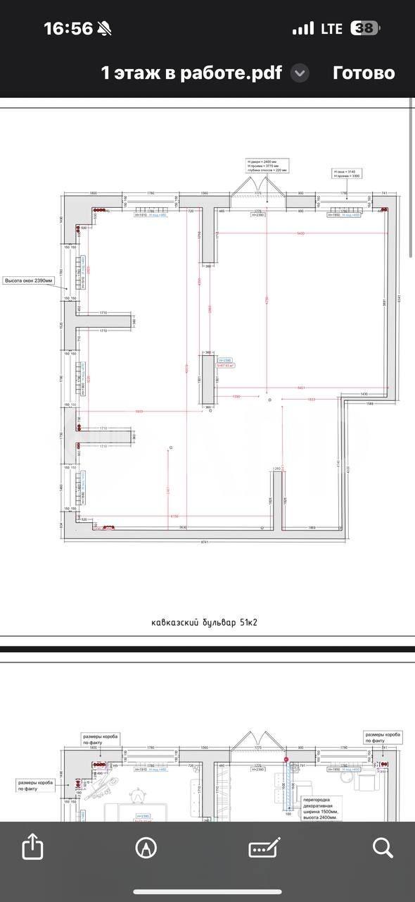
Код объекта: 126331.
Тип объекта: Помещение свободного назначения.
Площадь: 130 м².
Этаж / Этажность: 1 / 25.
Назначения: Медучреждение.

Описание и характеристики

От собственника! Без комиссии!

УНИКАЛЬНОЕ ПРЕДЛОЖЕНИЕ: ПОМЕЩЕНИЕ ПОД КЛИНИКУ "ПОД КЛЮЧ" В ДЕФИЦИТНОМ ЖИЛОМ КОМПЛЕКСЕ!

Готовый бизнес-объект, идеально подходящий для медицинской практики. Высококачественный ремонт практически завершен!
Вложены колоссальные инвестиции!!!
Осталось выполнить финальные работы, на которые предоставляется арендный отпуск.

ЧТО УЖЕ СДЕЛАНО:

*   Полностью готова отделка: установлены двери и сантехника (включая унитазы), положена плитка (включая санузлы), выполнена качественная оштукатуривание и шпаклевка. Профессиональная приточно-вытяжная вентиляция (инвестиции 1,5 млн рублей) уже установлена.
*   Проложены трассы и установлены наружные блоки кондиционеров.
*   Проведены все коммуникации: в каждом кабинете заведена вода и канализация ("мокрая точка").
*   Установлен стабилизатор напряжения 25 кВт.
*   Полностью выполнена электропроводка.
*   Детальная техническая документация (с размерами) для 1 и 2 этажей.


ФИНАЛЬНЫЕ РАБОТЫ (с предоставлением арендного отпуска):

* Установка розеток и плинтусов.
* Монтаж внутренних блоков кондиционеров.
* Завершение малярных работ.


ПРЕИМУЩЕСТВА:

*   Готовность к запуску бизнеса в кратчайшие сроки: Сэкономьте время и ресурсы!
*   Высокий спрос: Дефицит коммерческой недвижимости в ЖК обеспечивает быструю окупаемость.
*   Высокое качество отделки: Использовались только качественные материалы и технологии.
*   Предоставляем подробную аналитику рынка.
*   Видео-презентация по запросу.

ТОЛЬКО ДЛЯ ОПЫТНЫХ СПЕЦИАЛИСТОВ В МЕДИЦИНСКОЙ СФЕРЕ!

Так же рассмотрим другие виды деятельности (открыты к обсуждению)

Свяжитесь с нами для получения подробной информации и организации просмотра
Характеристики:
- 1 линия
- Отдельная входная группа
- Общая парковка
- Доступ 24/7
- ХВС/ГВС
- Свой санузел
- Центральное отопление
- Есть кондиционер
- Хороший ремонт
- Кабинетная планировка
- Жилой дом
- Имеется лифт
- Высота потолков 3 м
- Частично с мебелью
- С окнами
- Коммунальные услуги оплачиваются отдельно
- Предоставление юридического адреса

По всем вопросам можете обращаться к представителю собственника: Луцкий Артем
Помощь с оформлением ипотеки

Подписывайтесь на наш профиль, чтобы узнавать о новых локациях первыми!

Перейти в карточку объекта в CRM: 126331.

Дмитрий

+7 928 166-01-23

или оставьте ваш номер, и я перезвоню в течение 30 минут

Отправляя заявку вы соглашаетесь на обработку персональных данных

389 870 руб.

?

$ 5 014

€ 4 324

2 999 руб./м²


130 м²

1/25 этажей

Код объекта

126331

Предложение доступно для субагентов, авторизуйтесь

Дмитрий

+7 928 166-01-23

или оставьте ваш номер, и я перезвоню в течение 30 минут

Отправляя заявку вы соглашаетесь на обработку персональных данных

Похожие объявления

Посмотреть все похожие объявления
1/18
Код объекта: 304824.
Тип объекта: Помещение свободного назначения.
Площадь: 142.6 м².
Этаж / Этажность: 1 / 15.
1/12
Код объекта: 306678.
Тип объекта: Помещение свободного назначения.
Площадь: 75 м².
Этаж / Этажность: 1 / 3.
1/15
Код объекта: 307357.
Тип объекта: Помещение свободного назначения.
Площадь: 63 м².
Этаж / Этажность: 1 / 5.
1/10
Код объекта: 337562.
Тип объекта: Помещение свободного назначения.
Площадь: 34.2 м².
Этаж / Этажность: 1 / 4.
1/10
Код объекта: 306601.
Тип объекта: Помещение свободного назначения.
Площадь: 78 м².
Этаж / Этажность: 1 / 25.
1/9
Код объекта: 349483.
Тип объекта: Помещение свободного назначения.
Площадь: 135 м².
Этаж / Этажность: 1 / 16.
1/18
Код объекта: 304824.
Тип объекта: Помещение свободного назначения.
Площадь: 142.6 м².
Этаж / Этажность: 1 / 15.
1/13
Код объекта: 349406.
Тип объекта: Помещение свободного назначения.
Площадь: 123.6 м².
Этаж / Этажность: 1 / 52.
1/21
Код объекта: 295952.
Тип объекта: Помещение свободного назначения.
Площадь: 126 м².
Этаж / Этажность: -1 / 1.
1/15
Код объекта: 349353.
Тип объекта: Помещение свободного назначения.
Площадь: 128 м².
Этаж / Этажность: 1 / 24.
1/4
Код объекта: 248187.
Тип объекта: Торговое помещение.
Площадь: 122 м².
Этаж / Этажность: 1 / 21.
1/6
Код объекта: 248186.
Тип объекта: Торговое помещение.
Площадь: 88.15 м².
Этаж / Этажность: 1 / 21.
1/8
Код объекта: 257123.
Тип объекта: Офисное помещение.
Площадь: 562 м².
Этаж / Этажность: 1 / 7.
1/3
Код объекта: 342071.
Тип объекта: Торговое помещение.
Площадь: 58.3 м².
Этаж / Этажность: 1 / 7.
1/3
Код объекта: 342074.
Тип объекта: Торговое помещение.
Площадь: 84.2 м².
Этаж / Этажность: 1 / 7.

Не хочу искать, перезвоните мне!

Оставьте номер телефона, наш специалист свяжется с вами и поможет с подбором недвижимости!