Помещение в аренду под медцентр

ул Авиационная, д. 63

460 000 руб.

?

$ 1 086

€ 979

2 297 руб./м²


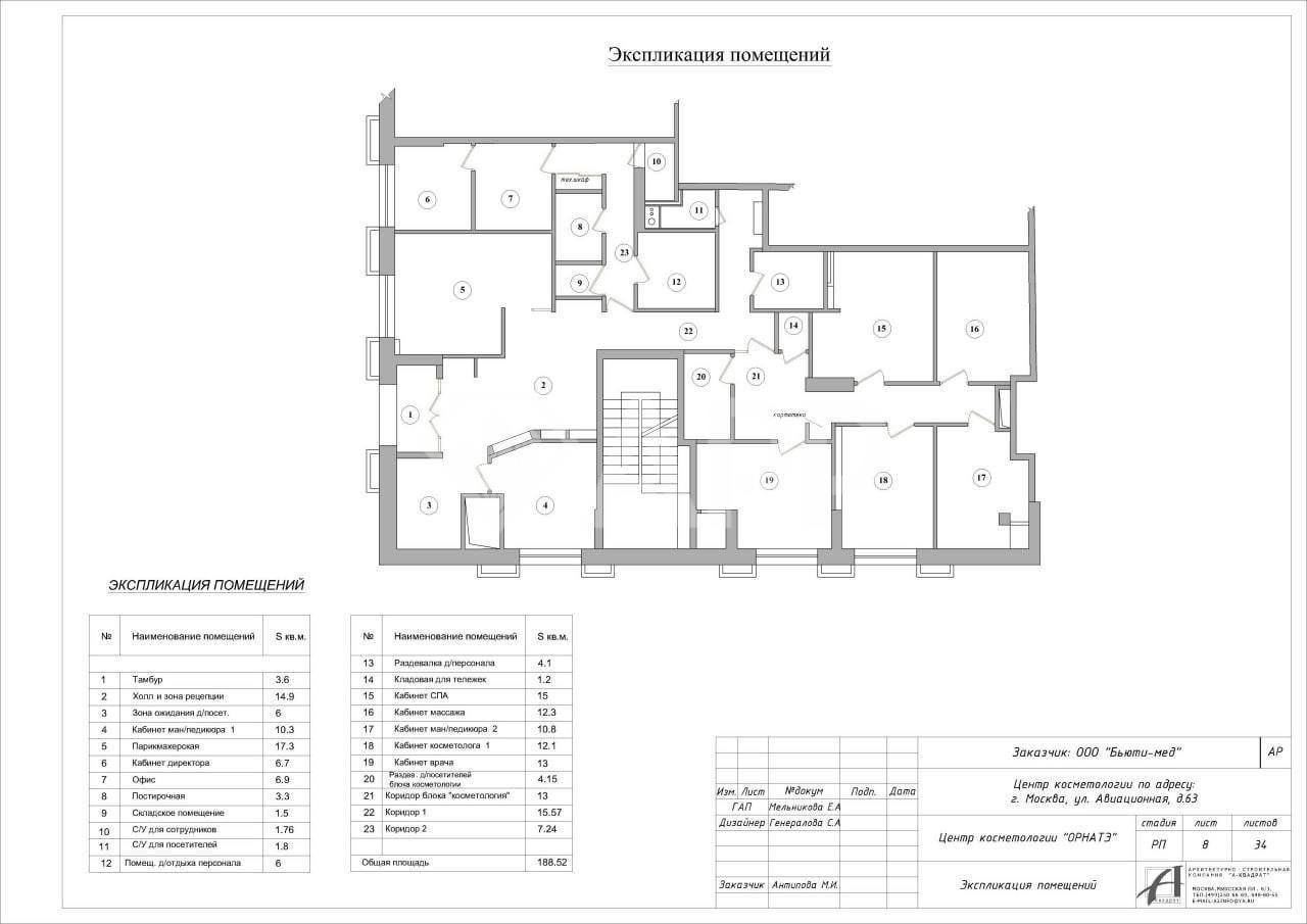
200.3 м²

1/26 этажей

Код объекта

130633

Предложение доступно для субагентов, авторизуйтесь

Помещение в аренду под медцентр

Код объекта: 130633.
Тип объекта: Помещение свободного назначения.
Площадь: 200.3 м².
Этаж / Этажность: 1 / 26.

Описание и характеристики

Характеристики:
- 1 линия
- Отдельная входная группа
- Общая парковка
- Есть возможность разместить вывеску
- Погрузка/разгрузка: Главный вход
- Доступ 24/7
- ХВС/ГВС
- Свой санузел
- Центральное отопление
- Приточно-вытяжная вентиляция
- Есть кондиционер
- Максимальная мощность 15 кВт
- Хороший ремонт
- Стрит ритейл
- Без лифта
- С окнами
- Видеонаблюдение
- Коммунальные услуги оплачиваются отдельно

Дополнительная информация:
Сдаётся помещение в топовой локации с высоким автомобильным и пешеходным трафиком. Идеально подходит под медцентр, спа-салон, бьюти-коворкинг. В пешей доступности от метро. С хорошим ремонтом, оборудовано и мебелировано с любовью(обговаривается отдельно).
АРР3

По всем вопросам можете обращаться к представителю собственника: Шола А (710)

Перейти в карточку объекта в CRM: 130633.

Наиля

+7 927 030-01-60

или оставьте ваш номер, и я перезвоню в течение 30 минут

Отправляя заявку вы соглашаетесь на обработку персональных данных

460 000 руб.

?

$ 5 880

€ 4 995

2 297 руб./м²


200.3 м²

1/26 этажей

Код объекта

130633

Предложение доступно для субагентов, авторизуйтесь

Наиля

+7 927 030-01-60

или оставьте ваш номер, и я перезвоню в течение 30 минут

Отправляя заявку вы соглашаетесь на обработку персональных данных

Похожие объявления

Посмотреть все похожие объявления
1/9
Код объекта: 349483.
Тип объекта: Помещение свободного назначения.
Площадь: 135 м².
Этаж / Этажность: 1 / 16.
1/18
Код объекта: 304824.
Тип объекта: Помещение свободного назначения.
Площадь: 142.6 м².
Этаж / Этажность: 1 / 15.
1/15
Код объекта: 307357.
Тип объекта: Помещение свободного назначения.
Площадь: 63 м².
Этаж / Этажность: 1 / 5.
1/25
Код объекта: 314075.
Тип объекта: Помещение свободного назначения.
Площадь: 312 м².
Этаж / Этажность: 3 / 3.
1/10
Код объекта: 337562.
Тип объекта: Помещение свободного назначения.
Площадь: 34.2 м².
Этаж / Этажность: 1 / 4.
1/18
Код объекта: 304824.
Тип объекта: Помещение свободного назначения.
Площадь: 142.6 м².
Этаж / Этажность: 1 / 15.
1/16
Код объекта: 296419.
Тип объекта: Помещение свободного назначения.
Площадь: 154 м².
Этаж / Этажность: 1 / 6.
1/9
Код объекта: 297624.
Тип объекта: Помещение свободного назначения.
Площадь: 174.6 м².
Этаж / Этажность: 1 / 7.
1/17
Код объекта: 294957.
Тип объекта: Помещение свободного назначения.
Площадь: 154 м².
Этаж / Этажность: 1 / 9.
1/23
Код объекта: 306714.
Тип объекта: Помещение свободного назначения.
Площадь: 199 м².
Этаж / Этажность: 1 / 6.
1/4
Код объекта: 248187.
Тип объекта: Торговое помещение.
Площадь: 122 м².
Этаж / Этажность: 1 / 21.
1/6
Код объекта: 248186.
Тип объекта: Торговое помещение.
Площадь: 88.15 м².
Этаж / Этажность: 1 / 21.
1/8
Код объекта: 257123.
Тип объекта: Офисное помещение.
Площадь: 562 м².
Этаж / Этажность: 1 / 7.
1/3
Код объекта: 342071.
Тип объекта: Торговое помещение.
Площадь: 58.3 м².
Этаж / Этажность: 1 / 7.
1/3
Код объекта: 342074.
Тип объекта: Торговое помещение.
Площадь: 84.2 м².
Этаж / Этажность: 1 / 7.

Не хочу искать, перезвоните мне!

Оставьте номер телефона, наш специалист свяжется с вами и поможет с подбором недвижимости!