ПСН в ЖК - 1 линия

ул Высотная, д. 8

127 200 руб.

?

$ 1 086

€ 979

2 400 руб./м²


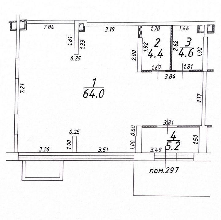
53 м²

1/17 этажей

Код объекта

129173

Предложение доступно для субагентов, авторизуйтесь

ПСН в ЖК - 1 линия

Код объекта: 129173.
Тип объекта: Помещение свободного назначения.
Площадь: 53 м².
Этаж / Этажность: 1 / 17.

Описание и характеристики

Сдаются 53 метра из общей площади помещения 78.2м.
На 25 метрах размещается ozon, задаток внесен, начинаются ремонтные работы.

Свободнач площадь напротив и вокруг входа в помещение.

Дополнительная информация:
✔️ в скором времени станет проездной улицей для многих корпусов, напротив застройка ЖК в проекте
✔️Идеально подходит для:
•продовольственного/хозяйственного магазина
•отделения банка и или банкоматов
• узкопрофильных продаж первичного назначения для нового квартала  

· Отдельный вход и большая витрина
· Подведены электричество, вода, канализация, вентиляция.
· Чистовая отделка/ремонт от прежнего арендатора (не бетон)
• площадь зала 70м²
• ИП на УСН
• Каникулы 1 мес.
Характеристики:
- 1 линия
- Отдельная входная группа
- Общая парковка
- Есть возможность разместить вывеску
- Погрузка/разгрузка: Главный вход
- Доступ 24/7
- ХВС/ГВС
- Свой санузел
- Центральное отопление
- Приточно-вытяжная вентиляция
- Максимальная мощность 15 кВт
- Хороший ремонт
- Две мокрых точки
- Стрит ритейл
- Высота потолков 4 м
- С окнами
- Возможность перепланировки
- Коммунальные услуги оплачиваются отдельно

*без мебели от предидущего арендатора.

Пишите/звоните - оперативная связь и показ.
АРР1

По всем вопросам можете обращаться к представителю собственника: Любовь Г (719)

Перейти в карточку объекта в CRM: 129173.

Наиля

+7 927 030-01-60

или оставьте ваш номер, и я перезвоню в течение 30 минут

Отправляя заявку вы соглашаетесь на обработку персональных данных

127 200 руб.

?

$ 1 626

€ 1 381

2 400 руб./м²


53 м²

1/17 этажей

Код объекта

129173

Предложение доступно для субагентов, авторизуйтесь

Наиля

+7 927 030-01-60

или оставьте ваш номер, и я перезвоню в течение 30 минут

Отправляя заявку вы соглашаетесь на обработку персональных данных

Похожие объявления

Посмотреть все похожие объявления
1/17
Код объекта: 288571.
Тип объекта: Помещение свободного назначения.
Площадь: 76 м².
Этаж / Этажность: 2 / 9.
1/18
Код объекта: 307332.
Тип объекта: Помещение свободного назначения.
Площадь: 43 м².
Этаж / Этажность: 1 / 15.
1/10
Код объекта: 345888.
Тип объекта: Помещение свободного назначения.
Площадь: 50 м².
Этаж / Этажность: 1 / 6.
1/17
Код объекта: 297510.
Тип объекта: Помещение свободного назначения.
Площадь: 40 м².
Этаж / Этажность: 1 / 5.
1/14
Код объекта: 354953.
Тип объекта: Помещение свободного назначения.
Площадь: 39 м².
Этаж / Этажность: 1 / 14.
1/18
Код объекта: 307332.
Тип объекта: Помещение свободного назначения.
Площадь: 43 м².
Этаж / Этажность: 1 / 15.
1/15
Код объекта: 307357.
Тип объекта: Помещение свободного назначения.
Площадь: 63 м².
Этаж / Этажность: 1 / 5.
1/10
Код объекта: 345888.
Тип объекта: Помещение свободного назначения.
Площадь: 50 м².
Этаж / Этажность: 1 / 6.
1/17
Код объекта: 297510.
Тип объекта: Помещение свободного назначения.
Площадь: 40 м².
Этаж / Этажность: 1 / 5.
1/12
Код объекта: 299042.
Тип объекта: Помещение свободного назначения.
Площадь: 53.8 м².
Этаж / Этажность: 1 / 9.
1/4
Код объекта: 248187.
Тип объекта: Торговое помещение.
Площадь: 122 м².
Этаж / Этажность: 1 / 21.
1/6
Код объекта: 248186.
Тип объекта: Торговое помещение.
Площадь: 88.15 м².
Этаж / Этажность: 1 / 21.
1/8
Код объекта: 257123.
Тип объекта: Офисное помещение.
Площадь: 562 м².
Этаж / Этажность: 1 / 7.
1/3
Код объекта: 342071.
Тип объекта: Торговое помещение.
Площадь: 58.3 м².
Этаж / Этажность: 1 / 7.
1/3
Код объекта: 342074.
Тип объекта: Торговое помещение.
Площадь: 84.2 м².
Этаж / Этажность: 1 / 7.

Не хочу искать, перезвоните мне!

Оставьте номер телефона, наш специалист свяжется с вами и поможет с подбором недвижимости!