Продажа здания в Даниловском районе

ул Городская, д. 8

1 800 000 000 руб.

?

$ 1 086

€ 979

189 474 руб./м²


9500 м²

1/7 этажей

Код объекта

125261

Предложение доступно для субагентов, авторизуйтесь

Продажа здания в Даниловском районе

Код объекта: 125261.
Тип объекта: Отдельно стоящее здание.
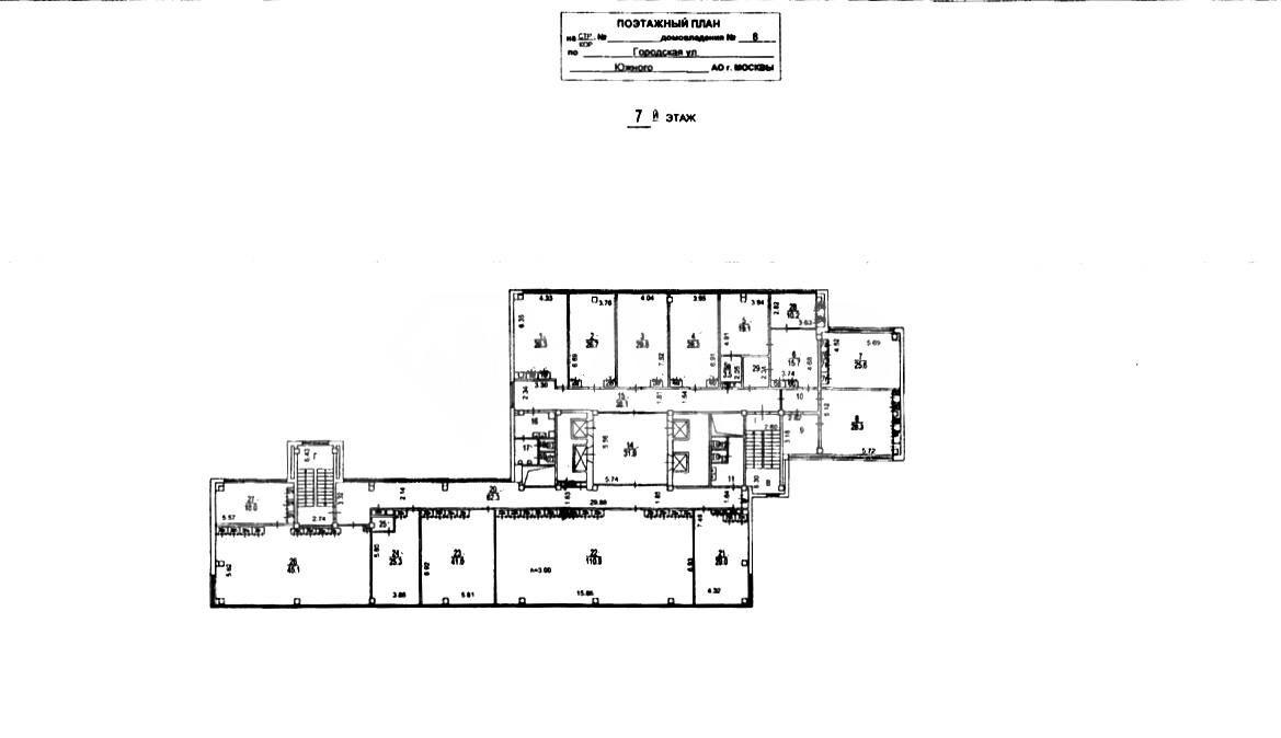
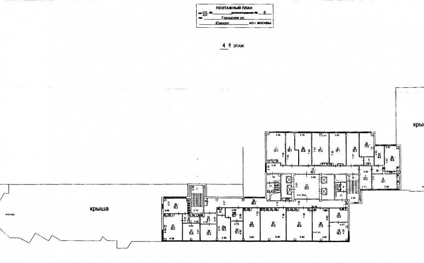
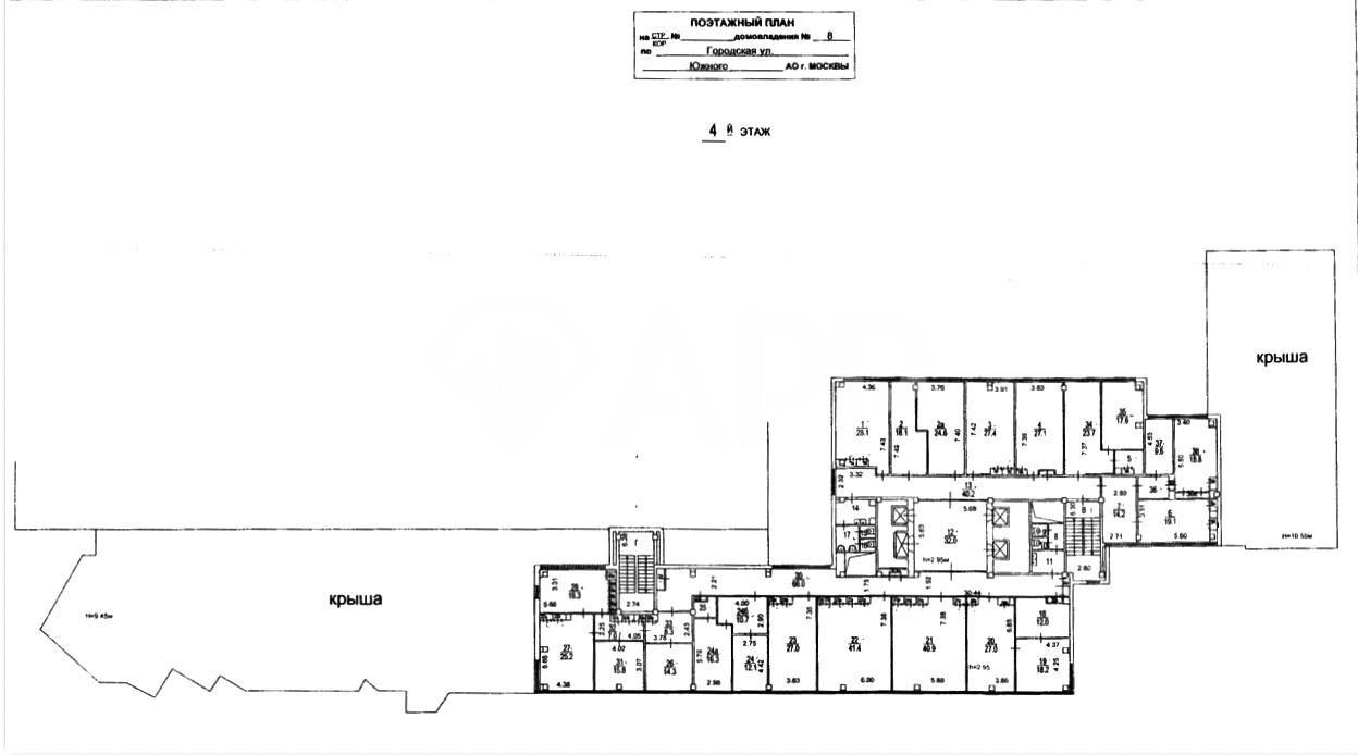
Площадь: 9500 м².
Этаж / Этажность: 1 / 7.

Описание и характеристики

Характеристики:
- 1 линия
- Отдельная входная группа
- Своя парковка
- Доступ 24/7
- ХВС/ГВС
- Свой санузел
- Центральное отопление
- Есть кондиционер
- Хороший ремонт
- Кабинетная планировка
- Отдельно стоящее здание
- Имеется лифт
- Высота потолков 3 м
- Видеонаблюдение
- С окнами
- Инфраструктура: Кафе/столовые, Магазины, Банки

Дополнительная информация:
В продажу предлагается отдельно стоящее здание за Даниловским рынком.
- Общая площадь 9500м2
- Территория огорожена
- 7 этажей, 8-ой этаж технический.
Отлично подойдет под:
Медицину, учебное заведение, офис, административное учреждение.
-Так же здание сдается в аренду.
АРР0

По всем вопросам можете обращаться к представителю собственника: Андрей М (707)

Перейти в карточку объекта в CRM: 125261.

Наиля

+7 927 030-01-60

или оставьте ваш номер, и я перезвоню в течение 30 минут

Отправляя заявку вы соглашаетесь на обработку персональных данных

1 800 000 000 руб.

?

$ 23 667 550

€ 20 083 548

189 474 руб./м²


9500 м²

1/7 этажей

Код объекта

125261

Предложение доступно для субагентов, авторизуйтесь

Наиля

+7 927 030-01-60

или оставьте ваш номер, и я перезвоню в течение 30 минут

Отправляя заявку вы соглашаетесь на обработку персональных данных

Похожие объявления

Посмотреть все похожие объявления
1/4
Код объекта: 248187.
Тип объекта: Торговое помещение.
Площадь: 122 м².
Этаж / Этажность: 1 / 21.
1/6
Код объекта: 248186.
Тип объекта: Торговое помещение.
Площадь: 88.15 м².
Этаж / Этажность: 1 / 21.
1/8
Код объекта: 257123.
Тип объекта: Офисное помещение.
Площадь: 562 м².
Этаж / Этажность: 1 / 7.
1/3
Код объекта: 342071.
Тип объекта: Торговое помещение.
Площадь: 58.3 м².
Этаж / Этажность: 1 / 7.
1/3
Код объекта: 342074.
Тип объекта: Торговое помещение.
Площадь: 84.2 м².
Этаж / Этажность: 1 / 7.

Не хочу искать, перезвоните мне!

Оставьте номер телефона, наш специалист свяжется с вами и поможет с подбором недвижимости!