Аренда здания или его часть

ул Городская, д. 8

14 991 000 руб.

?

$ 1 086

€ 979

1 578 руб./м²


9500 м²

1/7 этажей

Код объекта

125114

Предложение доступно для субагентов, авторизуйтесь

Аренда здания или его часть

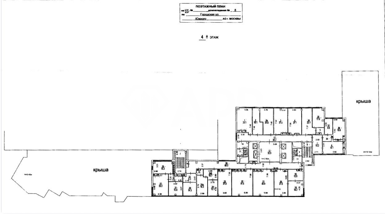
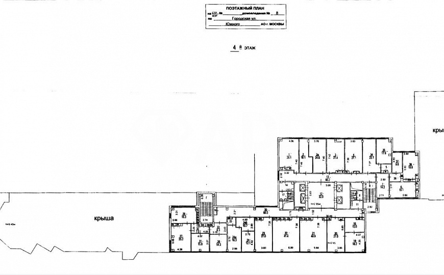
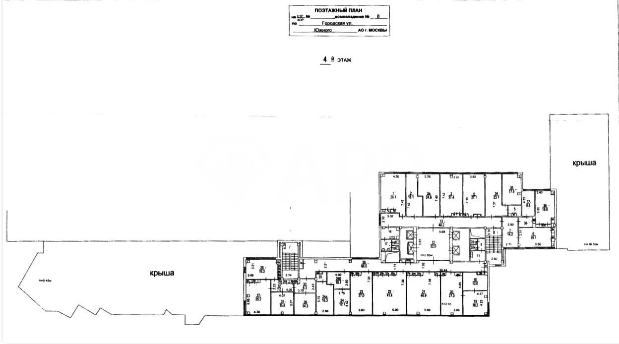
Код объекта: 125114.
Тип объекта: Отдельно стоящее здание.
Площадь: 9500 м².
Этаж / Этажность: 1 / 7.

Описание и характеристики

Характеристики:
- 1 линия
- Общая входная группа
- Общая парковка
- Доступ 24/7
- ХВС/ГВС
- Свой санузел
- Центральное отопление
- Хороший ремонт
- Кабинетная планировка
- Отдельно стоящее здание
- Имеется лифт
- Высота потолков 3 м
- Видеонаблюдение
- Частично с мебелью
- С окнами
- Инфраструктура: Кафе/столовые, Банки
- Коммунальные услуги оплачиваются отдельно

Дополнительная информация:
В аренду предлагается здание или его часть!
Отличное расположение в пешей доступности от метро Тульская.
7-ми этажное здание с коридорно-кабинетной планировкой.
Отлично подойдет под: медицинский центр, учебное заведение, офисное пространство, административное учреждение.  ПОД ХОСТЕЛ НЕ СДАЕТСЯ


Арендная ставка от 1579 за м2
Общая площадь здания 9500м2
АРР0

По всем вопросам можете обращаться к представителю собственника: Андрей М (707)

Перейти в карточку объекта в CRM: 125114.

Наиля

+7 927 030-01-60

или оставьте ваш номер, и я перезвоню в течение 30 минут

Отправляя заявку вы соглашаетесь на обработку персональных данных

14 991 000 руб.

?

$ 210 274

€ 181 079

1 578 руб./м²


9500 м²

1/7 этажей

Код объекта

125114

Предложение доступно для субагентов, авторизуйтесь

Наиля

+7 927 030-01-60

или оставьте ваш номер, и я перезвоню в течение 30 минут

Отправляя заявку вы соглашаетесь на обработку персональных данных

Похожие объявления

Посмотреть все похожие объявления
1/41
Код объекта: 424353.
Тип объекта: Отдельно стоящее здание.
Площадь: 9180.9 м².
Этаж / Этажность: 1 / 14.
1/12
Код объекта: 415389.
Тип объекта: Отдельно стоящее здание.
Площадь: 12000 м².
Этаж / Этажность: 1 / 8.
1/41
Код объекта: 424353.
Тип объекта: Отдельно стоящее здание.
Площадь: 9180.9 м².
Этаж / Этажность: 1 / 14.
1/12
Код объекта: 415389.
Тип объекта: Отдельно стоящее здание.
Площадь: 12000 м².
Этаж / Этажность: 1 / 8.
1/4
Код объекта: 248187.
Тип объекта: Торговое помещение.
Площадь: 122 м².
Этаж / Этажность: 1 / 21.
1/6
Код объекта: 248186.
Тип объекта: Торговое помещение.
Площадь: 88.15 м².
Этаж / Этажность: 1 / 21.
1/8
Код объекта: 257123.
Тип объекта: Офисное помещение.
Площадь: 562 м².
Этаж / Этажность: 1 / 7.
1/6
Код объекта: 296989.
Тип объекта: Отдельно стоящее здание.
Площадь: 104 м².
Этаж / Этажность: 1 / 1.
1/24
Код объекта: 252992.
Тип объекта: Отдельно стоящее здание.
Площадь: 1244 м².
Этаж / Этажность: 1 / 3.

Не хочу искать, перезвоните мне!

Оставьте номер телефона, наш специалист свяжется с вами и поможет с подбором недвижимости!