Новый Склад 2500м.кв+2500м.кв рядом МКАД

Денисьевский проезд, д. 1

3 375 000 руб.

?

$ 1 086

€ 979

1 350 руб./м²


2500 м²

1/2 этажей

Код объекта

130865

Предложение доступно для субагентов, авторизуйтесь

Новый Склад 2500м.кв+2500м.кв рядом МКАД

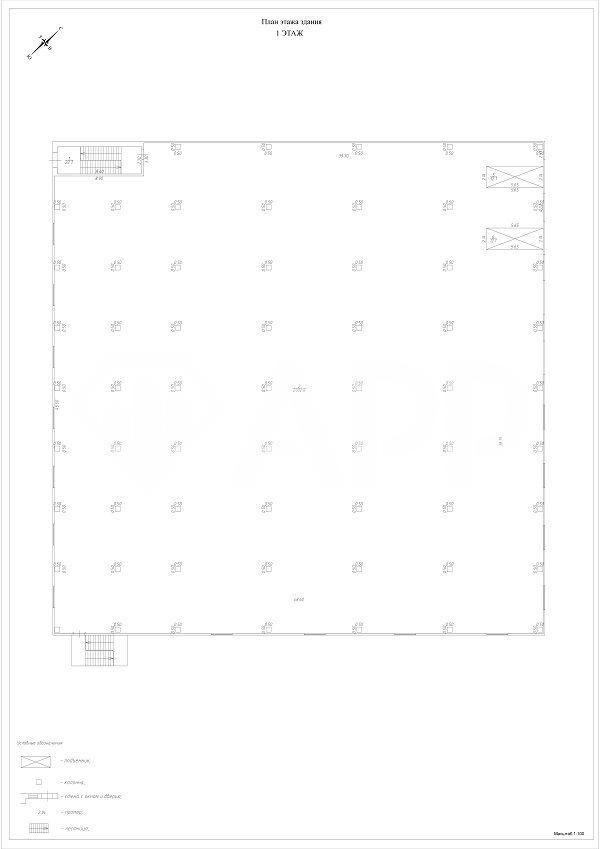
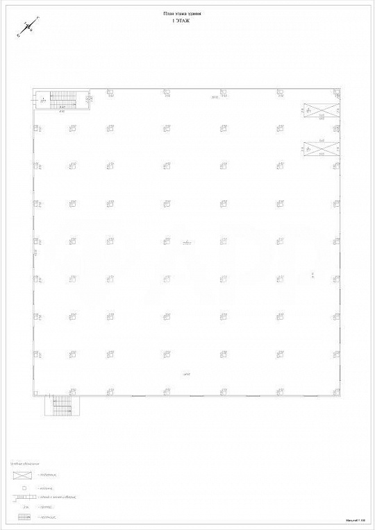
Код объекта: 130865.
Тип объекта: Складское помещение.
Площадь: 2500 м².
Этаж / Этажность: 1 / 2.

Описание и характеристики

2-хэтажный новый склад класса А

Площадь каждого этажа по 2500м2

Площадь склада можно расширить или уменьшить

Отличный подъезд к складу рядом МКАД
Близость ТК Садовод, ТЯК Москва, ТК Южные ворота

- Теплый склад
- Доступ 24/7
- ХВС/ГВС
- Свой санузел на каждом этаже
- Автономное отопление
- Высота потолков 9 м
- Шаг колонн 6х9
- Высота ворот 4 м
- Напольное покрытие - Антипыль
- Максимальная мощность 50 кВт
- Нагрузка на пол до 5т/м2

- Два грузовых подъёмника на второй этаж

- Подъездные пути под грузовой транспорт, легковой транспорт
- Площадка рядом с помещением
- Место для маневра транспорта
- Отличная инфраструктура
- Коммунальные услуги оплачиваются отдельно


Условия обсуждаются, звоните!
АРР0

По всем вопросам можете обращаться к представителю собственника: Вера К (729)

Подписывайтесь на наш профиль, чтобы узнавать о новых локациях первыми!

Перейти в карточку объекта в CRM: 130865.

Наиля

+7 927 030-01-60

или оставьте ваш номер, и я перезвоню в течение 30 минут

Отправляя заявку вы соглашаетесь на обработку персональных данных

3 375 000 руб.

?

$ 41 593

€ 36 125

1 350 руб./м²


2500 м²

1/2 этажей

Код объекта

130865

Предложение доступно для субагентов, авторизуйтесь

Наиля

+7 927 030-01-60

или оставьте ваш номер, и я перезвоню в течение 30 минут

Отправляя заявку вы соглашаетесь на обработку персональных данных

Похожие объявления

Посмотреть все похожие объявления
1/12
Код объекта: 418475.
Тип объекта: Складское помещение.
Площадь: 2350 м².
Этаж / Этажность: 1 / 2.
1/5
Код объекта: 413526.
Тип объекта: Складское помещение.
Площадь: 2396.2 м².
Этаж / Этажность: -1 / 1.
1/11
Код объекта: 414092.
Тип объекта: Складское помещение.
Площадь: 2500 м².
Этаж / Этажность: 2 / 4.
1/13
Код объекта: 414775.
Тип объекта: Складское помещение.
Площадь: 3000 м².
Этаж / Этажность: 1 / 3.
1/10
Код объекта: 412353.
Тип объекта: Складское помещение.
Площадь: 1850 м².
Этаж / Этажность: 5 / 6.
1/11
Код объекта: 393898.
Тип объекта: Складское помещение.
Площадь: 2000 м².
Этаж / Этажность: 1 / 1.
1/12
Код объекта: 418475.
Тип объекта: Складское помещение.
Площадь: 2350 м².
Этаж / Этажность: 1 / 2.
1/5
Код объекта: 413526.
Тип объекта: Складское помещение.
Площадь: 2396.2 м².
Этаж / Этажность: -1 / 1.
1/11
Код объекта: 414092.
Тип объекта: Складское помещение.
Площадь: 2500 м².
Этаж / Этажность: 2 / 4.
1/37
Код объекта: 412885.
Тип объекта: Складское помещение.
Площадь: 2748 м².
Этаж / Этажность: 1 / 2.
1/4
Код объекта: 248187.
Тип объекта: Торговое помещение.
Площадь: 122 м².
Этаж / Этажность: 1 / 21.
1/6
Код объекта: 248186.
Тип объекта: Торговое помещение.
Площадь: 88.15 м².
Этаж / Этажность: 1 / 21.
1/8
Код объекта: 257123.
Тип объекта: Офисное помещение.
Площадь: 562 м².
Этаж / Этажность: 1 / 7.
1/3
Код объекта: 342071.
Тип объекта: Торговое помещение.
Площадь: 58.3 м².
Этаж / Этажность: 1 / 7.
1/3
Код объекта: 342074.
Тип объекта: Торговое помещение.
Площадь: 84.2 м².
Этаж / Этажность: 1 / 7.

Не хочу искать, перезвоните мне!

Оставьте номер телефона, наш специалист свяжется с вами и поможет с подбором недвижимости!